Behind The Design: The Fitzgerald Condo

A Contemporary Condo Remodel in Downtown Grand Rapids 

Modern Living Within Historic Walls 

Built in 1915 as the original home of the Grand Rapids YMCA, the Fitzgerald Building stands as a Colonial Revival landmark in downtown Grand Rapids. Its restored masonry façade, terra cotta cornice detailing, and original limestone ornamentation preserve the architectural integrity of the past. 

While the exterior remains rooted in history, the building’s interior was fully reimagined in 2007. The entire structure was taken back to its masonry walls and concrete framework, allowing state-of-the-art plumbing, heating, and electrical systems to be seamlessly integrated within the historic shell. Today, subtle reminders of its former life, vintage scoreboards, racquetball courts, and the historic oval running track, offer a distinctive sense of place rarely found in contemporary condominium living. 

Image courtesy of Zillow

Living at the Fitzgerald means stepping directly into the cultural heartbeat of downtown Grand Rapids. Just blocks from the Grand Rapids Art Museum, Van Andel Arena, Grand Rapids Civic Theatre, and the main branch of the Grand Rapids Public Library, the location offers unmatched walkability and energy. The Fitzgerald delivers both connection and convenience in one of the city’s most established landmarks, while delivering on urban living with historic character. 

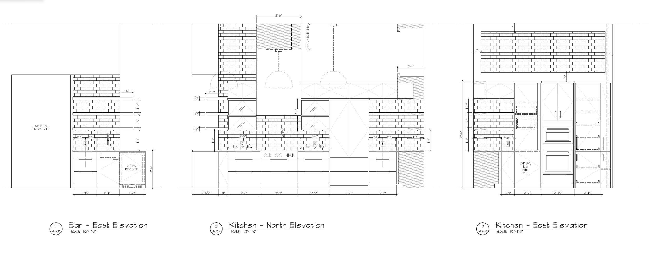
A Masculine, Modern Condo Remodel by Via Design 

Set within the historic Fitzgerald Building, this 1,800-square-foot, 2-bedroom, 2-bathroom condo became the canvas for a thoughtful transformation. Two defining features were the barrel-vaulted windows framing park views from the main living area, while soaring 14-foot ceilings enhance the sense of space and drama. 

Led by interior designer Becky Miedema, the goal was clear: create a cool, masculine home that balances function with presence, equally suited for lively gatherings and everyday living. 

The renovation centered on a reimagined kitchen, complemented by updates to the fireplace, primary bathroom, full bathroom, and laundry area. Carefully curated material selections throughout the home unify the spaces, creating a cohesive and refined environment. The client personalized the space with furniture and décor, adding his own personal touch. 

Reworking the Kitchen Layout 

The original kitchen configuration included a peninsula that limited flow and functionality. Via’s team reimagined the layout, removing walls at the kitchen entry and replacing the peninsula with a central island. This creates a more open and inviting space for entertaining. 

The new island anchors the room and transitions into a bar area. The bar is perfect for hosting a fun evening with friends while drawing attention upward to the condo’s tall ceilings and windows, one of the space's defining architectural features. 

Custom matte black cabinetry by CLEO was selected to establish a bold, modern aesthetic. Minimal black hardware reinforces the clean lines, while a panel-ready refrigerator maintains visual continuity. A subtle gray backsplash tile with a soft sheen introduces layered materiality without competing for attention. The appliances were upgraded to complement the updated layout and performance needs of the space. Three large pendants add a clean, classic look to the space, with a dome shape that casts a warm shadow downward across the kitchen. The result is a refined, contemporary kitchen that feels grounded, cohesive, and distinctly urban. 

CLEO Cabinetry  

Via Design partnered with CLEO Cabinetry to design custom cabinets for the kitchen, primary bathroom, full bathroom, and laundry room. CLEO is a manufacturer of contemporary cabinetry and furniture based in Grand Rapids, Michigan, serving commercial and residential markets throughout West Michigan and the broader Midwest region. CLEO partners with builders, developers, and design professionals to deliver high-quality, design-forward cabinetry solutions. 

Thoughtful Updates Beyond the Kitchen 

While the kitchen anchors the home, the surrounding spaces were equally considered from room to room. A dining table custom-designed by the owner’s engineering company adds a personal architectural statement to the dining area. 

The fireplace was redesigned with updated materials to complement the new palette. 

Reimagining the Bathrooms and Laundry 

The primary bath, closet, and laundry layout were reconfigured to improve functionality. New flooring and wall tile, paint selections, cabinet hardware, and plumbing fixtures further unify the space, creating continuity with the rest of the home. Plumbing fixtures in onyx and matte black reinforce the home’s masculine palette. A free-standing soaking tub with an enameled cast-iron surround was installed.  

Condo Remodel in Downtown Grand Rapids by Via Design 

Set within one of downtown Grand Rapids’ most recognizable historic buildings, this remodel reflects a thoughtful balance between preservation and progression. By reworking the layout and layering contemporary materials within the Fitzgerald’s storied framework, Via Design created an urban retreat defined by clean lines and refined character. The result is a home that reflects the owner’s personality while incorporating the historic building's architectural legacy. If you're considering a home renovation or condo remodel in Grand Rapids, the Via Design team would welcome the opportunity to explore what’s possible for your space. 

Project Snapshot 

Project Type: Residential Condo Remodel 

Location: Downtown Grand Rapids, MI 

Via Team 

  • Interior Design: Becky Miedema & Val Schmieder 

  • Interior Drawings: David Mannebach, Max Bainbridge & Tiffany Taylor 

  • 3D Renderings: Adam Schmieder & Nate House 

  • Photography: David Daniele 

Year of Completion: 2026 

Written By: Brittany Poppen 

Brittany Poppen